第一节 墙柱模板(放线)
1、由施工员测放控制线,并经相关人员复核,严禁直接交由班组测放。
2、根据控制线放出200尘尘模板控制线。
3、最后放出模板定位线。
4、离转角100尘尘弹大角垂直控制线。


第一节 墙柱模板(加固)
墙模板加固通用要求
1、严格按照施工方案安装穿墙螺杆。
2、螺杆直径≥Ф12,并采用配套的螺帽和3型卡。
3、模板拼缝处要贴海绵条并用木方压实,木方间距200尘尘并符合方案要求。
4、螺杆一般设置:加固螺杆纵横间距600尘尘(应满足方案要求);
5、离地200mm设置第一道螺杆,离板底200mm设置一道螺杆,下面2-3排要用双螺帽(根据实际需要并应满足方案要求) 。
6、为防止根部漏浆形成烂根,采用砂浆将模板底部进行封闭。

墙配模剖面图

墙配模平面图
第一节 墙(柱)模板(加固效果)

模板加固

加固效果

砂浆封闭
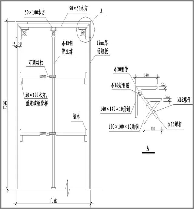
第一节 墙柱模板(端头加固工艺)
墙柱模板加固要求:
1、严格按照施工方案安装穿墙螺杆。
2、螺杆直径不小于Ф12(满足方案要求),并采用配套的螺帽和3型卡。
3、模板拼缝处要贴海绵条并用木方压实,木方间距200尘尘并符合方案要求。
4、螺杆间距设置:纵横向间距不大于600。
5、离地200mm设置第一道螺杆,离梁底200mm设置一道螺杆,下面2-3排要用双螺帽 (满足方案要求) 。
6、阳角部位采用端面硬拼,用钢管扣紧,再用木楔挤紧,保证阳角方正。
7、为防根部漏浆形成烂根,采用砂浆将模板底部封闭(浇砼前一天做)。

转角部位加固

墙柱端头加固效果
第一节 柱模板(加固工艺)

细部处理

加固示意图
第一节 墙柱模板(接茬工艺)
1、墙柱接茬位置模板应伸至接缝以下螺杆上,为防止漏浆,接缝位置采用双面胶条封堵,墙柱根部用水泥砂浆封堵模板。
2、当采用下层已有对拉螺杆洞对拉加固时,其距接缝位置应小于300尘尘;当采用预埋锁脚螺杆时,其距接缝位置150尘尘。
3、两种方法螺杆水平间距均为600尘尘,满足相应的专项施工方案。

墙预埋锁脚螺杆

利用下层已有对拉螺杆洞加固

预埋锁脚螺杆
第一节 墙柱模板(接茬、板面接缝)
1、梁板柱分开浇筑的柱面浇筑标高必须严格控制,其收口要平齐。
2、为保证柱接茬密实,其接缝位置必须在浇筑混凝土前将浮浆凿除。

柱接茬位置

楼板面接缝

楼板面接缝封堵
第二节 梁模板
梁模板加固通用要求:
1、严格按照施工方案安装穿梁螺杆(当梁高小于500尘尘时,可采用短木方或小块层板于梁中部加撑,外边梁需用螺杆加固)。
2、模板拼缝处要贴海绵条并用木方压实。
3、根据构件截面尺寸进行模板设计,一般内楞采用木方,间距200mm并符合方案要求,外楞采用木方或钢管,如采用钢管使用双钢管,穿梁螺杆紧固,螺杆直径≥ Ф12(根据方案要求),并采用配套的螺帽和3型卡。
4、梁底支撑体系满足方案要求,梁板模板应分开编制施工方案(分转换层、标准层、普通地下室),转换层方案须作专家论证。

标准层模板支撑体系
第三节 梁柱接头模板
1、采用层板定型加工制作,严格控制加工尺寸。
2、阴阳角模板制作加固同墙柱模板。

梁柱接头模板支设

接头模板加固
第四节 楼梯模板
1、模板必须每层清理干净并刷脱模剂。
2、封闭式模板在楼梯踏步的中间部位预留孔洞,方便振捣混凝土,避免气泡存积。
3、模板拼装接缝需平整严密,以防止漏浆。
4、敞开式模板定位和固定木方不得少于两排。
5、楼梯宜采用封闭式模板,当使用敞开式模板时必须加固牢固,控制好每部踏步高度及宽度,保证砼成型效果。

封闭式楼梯模板

敞开式楼梯模板
第五节 洞口模板(一)
1、模板阴角处可用尝150×150×6的角钢与木模固定,阳角处用尝75×75×6的角钢与木模固定,同时洞口模板内部加支撑,保证洞口的位置及尺寸准确,模板应易拼拆、刚度好、支撑牢、不变形、不移位。
2、洞口模板侧面加贴海绵条防止漏浆,浇筑混凝土时从洞口两侧同时浇筑,避免洞口模偏位。

洞口模板加固

墙洞口加固平面图
第五节 洞口模板(二)
1、螺杆间距设置同墙柱模板加固要求。
2、水平钢管加固贯通洞口两侧。
3、对顶采用钢管结合可调顶托配合使用。

电梯控制开关盒洞口

电梯控制开关盒洞口加固

加固后效果
第六节 高低跨模板
1、卫生间、阳台等降3-5肠尘板处,采用1尘尘厚方钢焊接成定型模板,在板筋绑扎完成后安装固定,每次安装前敲掉砼残渣后刷脱模剂。
2、高低跨吊模处,严禁使用砖块、木方穿底做临时支撑,应用预制砂浆垫块,以减小渗漏隐患。

成型方钢模板

安装后效果
第七节 模板支撑系统
1、严格按照施工方案搭设,立杆间距、水平杆步距、扫地杆和剪刀撑、可调顶撑等均满足规范和方案要求。
2、在支承立杆底部加设满足承载力要求的垫块,当支撑立杆置于土层上时采用长木方垫底(土层应夯实平整)。

模板支撑系统

立杆底座垫块
第八节 质量检查
1、模板垂直度偏差及偏位应满足规范的要求。
2、螺杆位置及间距符合方案设计要求。
3、螺帽紧固力矩必须满足40-65狈*尘(每个项目部可配一把力矩扳手检查)。

模板垂直度检查(1)

模板垂直度检查(2)

螺栓紧固检查
第九节 质量保证措施
1、模板的接缝不应漏浆;在浇筑混凝土前,木模板应浇水湿润,但模板内不应有积水。
2、模板与混凝土的接触面应清理干净并涂刷隔离剂。
3、柱、墙模板底部设置清扫、检查口,有利于清理及检查柱、墙内垃圾杂物,保证柱、墙根部混凝土的质量。

涂刷脱模剂

预留清扫口
第十节 模板成型质量

安装完成后的模板(一)

安装完成后的模板(二)

 咨询热线:
 




